Zwanebloemweg
nieuwbouw woonhuis Rosmalen
Zwanebloemweg
nieuwbouw woonhuis Rosmalen
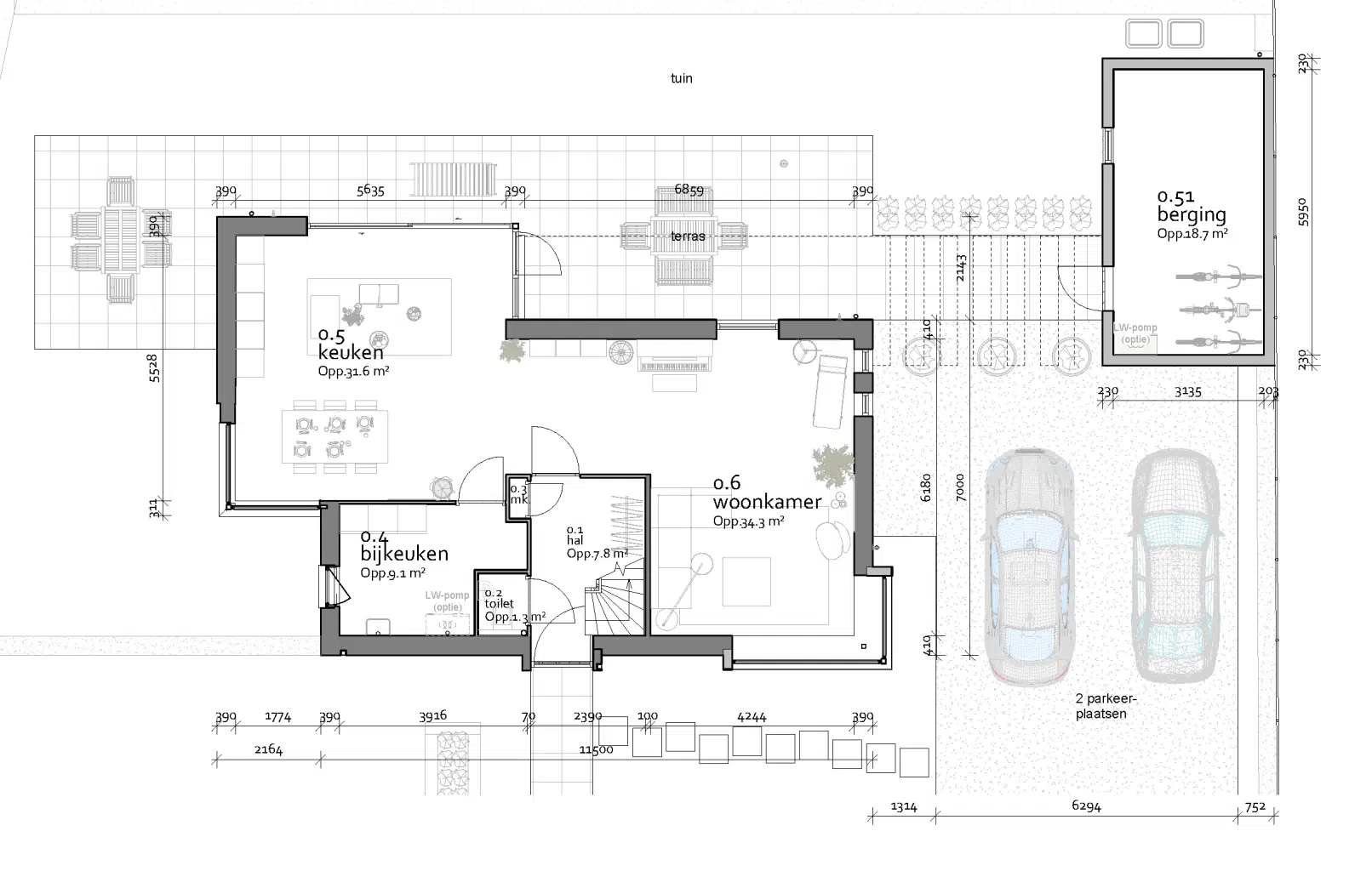
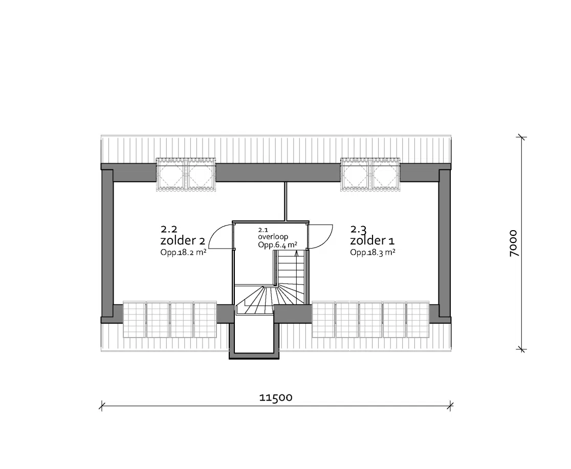
Deze vrijstaande woning wordt gebouwd op een langwerpig kavel dat aan de voorzijde een fraai uitzicht heeft. In het ontwerp worden de woonkeuken en woonkamer voorzien van panoramische ramen, die om de privacy te waarborgen en als zonwering, voorzien zijn van vouwluiken met houten lamellen. De pui boven de voordeur, eveneens voorzien van houten lamellen, voorziet de traphal van daglicht, en biedt vanaf de overkragende overloop een mooi uitzicht.















