Jutta van Nassaulaan
nieuwbouw woonhuis Sint Anthonis
Jutta van Nassaulaan
nieuwbouw woonhuis Sint Anthonis
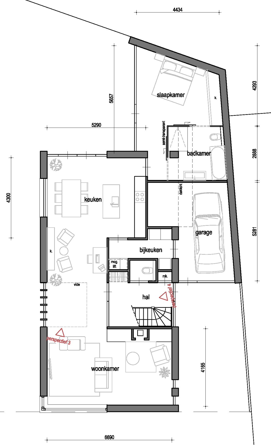
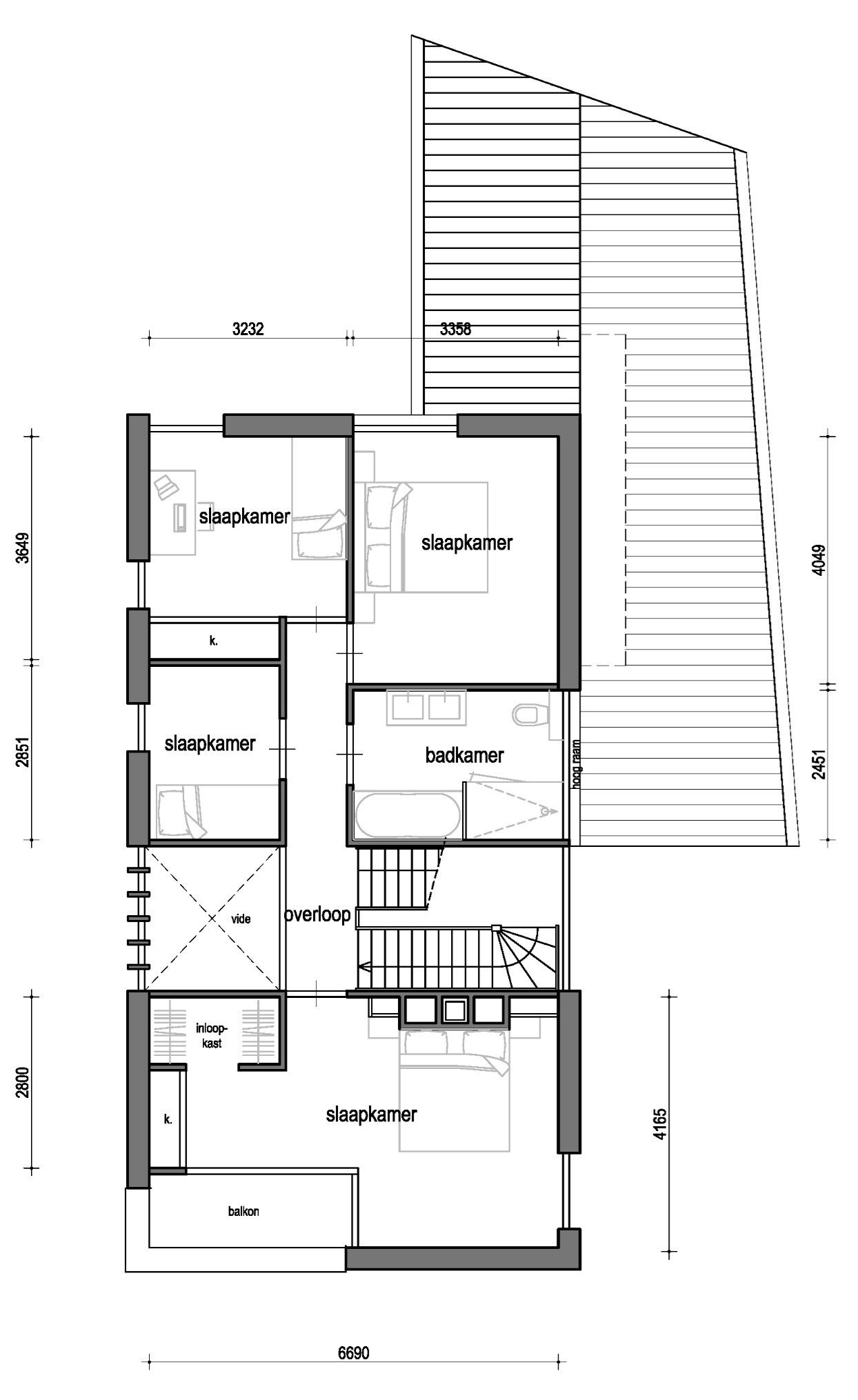
In het midden van de woning is een verticale ‘dwars-snede’ aangebracht. Hierdoor zijn als het ware twee woning-volumes gecreëerd (onder een doorlopend dak), die In de hal verbonden worden door een ‘brug’ waarop de vrijhangende trap aansluit. Deze ruimtelijk dynamiek komt ook tot uiting in de overhangende dakrand boven de loggia in de voorgevel.










